FeWo Hagen Haus 1 bis 3 P.

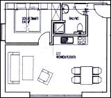
Grundriss

Die FeWo im Erdgeschoß ist mit ca. 40 qm für bis zu 3 Personen ausgelegt und verfügt über einen kombinierten Wohn- und Schlafraum mit Küchenzeile, ein Bad mit Dusche und ein Schlafzimmer. Weitere Ausstattungsmerkmale: Sat-TV, Telefon, PC-Anschluss DSL kostenlos, PKW-Stellplatz, Fahrradstellplatz, Waschmaschinennutzung, eigene Terrasse.


Bilder der Wohnung


Grundriss FEWO Hagen

Ausstattung

Allgemein Aussenbereich Wohnraum Küche Sonstiges
Ca. 40 qm
1-3 Personen
Erdgeschoß
1 Wohnzimmer mit Küchenzeile
1 Schlafzimmer mit Doppelbett
1 Badezimmer mit Dusche
keine Tiere
Eigene Gartenterrasse
Unterbringungsmöglichkeit für Fahrräder
Parkplatz
Ruhiges Wohngebiet
Schlafcouch
Couchgarnitur
Esstisch
Sat-Fernseher
Radio-CD-Player
Telefon
Internet DSL (kostenlos)
Küchenzeile im Wohnzimmer
Kühlschrank
Herd
Toaster
Kaffeemaschine
Babybett und
Kinderhochstuhl
erhältlich
Bettwäsche und
Handtücher
gegen Gebühr
Waschmaschine gegen Gebühr
         

(C) 2008 - Alle Rechte vorbehalten

Diese Seite drucken