FeWo Hagen Haus 1 bis 3 P.
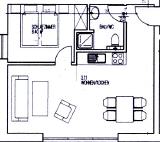
Grundriss
Die FeWo im Erdgeschoß ist mit ca. 40 qm für bis zu 3 Personen ausgelegt und verfügt über einen kombinierten Wohn- und Schlafraum mit Küchenzeile, ein Bad mit Dusche und ein Schlafzimmer. Weitere Ausstattungsmerkmale: Sat-TV, Telefon, PC-Anschluss DSL kostenlos, PKW-Stellplatz, Fahrradstellplatz, Waschmaschinennutzung, eigene Terrasse. 
Bilder der Wohnung
Ausstattung
| Allgemein | Aussenbereich | Wohnraum | Küche | Sonstiges | 
| 
		      	        Ca. 40 qm 1-3 Personen Erdgeschoß 1 Wohnzimmer mit Küchenzeile 1 Schlafzimmer mit Doppelbett 1 Badezimmer mit Dusche keine Tiere  | 
                          
		      	        Eigene Gartenterrasse Unterbringungsmöglichkeit für Fahrräder Parkplatz Ruhiges Wohngebiet  | 
                          
		      	        Schlafcouch Couchgarnitur Esstisch Sat-Fernseher Radio-CD-Player Telefon Internet DSL (kostenlos)  | 
                          
		      	        Küchenzeile im Wohnzimmer Kühlschrank Herd Toaster Kaffeemaschine  | 
                          
		      	        Babybett und Kinderhochstuhl erhältlich Bettwäsche und Handtücher gegen Gebühr Waschmaschine gegen Gebühr  | 
    
